Dodaj firmu
Kalman d.o.o.
5.0 | 3 ocena
Član 1 godinu

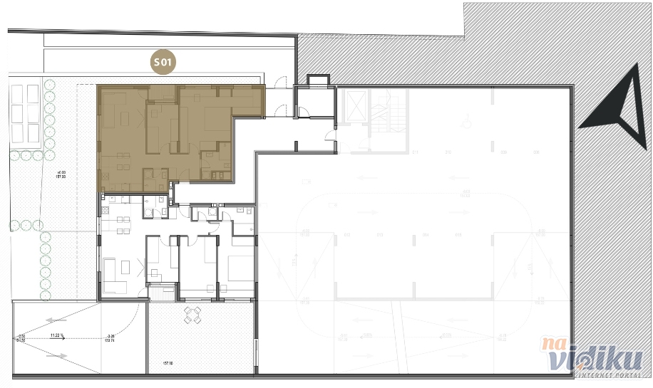
Nov, useljiv u martu 2026. Pogodan za osobe koje imaju poteškoće u kretanju, do stana se dolazi bez i jednog stepenika. Dobar za stanovanje jos bolji za izdavanje kao poslovni prostor. Dva kupatila, dve spavaće sobe, dnevni boravak otvoren prema kuhinji i trpezariji. U okviru master spavaće sobe je dodatni prostor koji moze biti radna soba, garderober ili ostava.

Stan je na prizemlju na kome  su samo 2 stana.  Klasično prizemlje je u pitanju, stan je pored ulaza u zgradu zbog čega je pogodan da se koristi i kao poslovni prostor za mirnu delatnost. Mirna ulica i kraj, dosta zelenila. Veliki potencijal za uslužne delatnosti kojih je jako malo na ovoj lokaciji.

O projektu:

Lux gradnja. Renomirani investitor: Kalman doo, poznat po kvalitetnoj gradnji i pouzdanosti. Pogledajte naše projekte na www.kalman.rs

Dodatni sadržaji: Zajedničko dvorište od 300 m², teretana i smart home sistem, mogućnost kupovine garažnog mesta. Ulaz u garažu preko dvosmernih rampi, svako mesto na betonu, bez klackalica.

Rok izgradnje: Mart 2026. Plaćanje na rate dok traje gradnja ili avansno uz popust! 

Mogućnost povrata PDV-a za kupce prvog stana. Povoljno!

 U ponudi stanovi od 50m2 do 80m2. Sve ih možete pogledati na sajtu www.kalmandedinje.rs

Pozovite investitora direktno  +38162301598

Šifra: S1-L1
Kategorija: Investitori Beograd
Podkategorija: Prodaja stanova Beograd
Objavljeno: 23.06.2025.
# ID Oglasa: 113099
Firma: Kalman d.o.o.
Website: www.kalman.rs
Idi na vrh strane